
Vjuhytta er en kompakt løsning som oppfyller alle moderne krav til komfort. Samtidig utfordrer den oss til å bruke mindre strøm, mindre vann og litt mindre plass. Kan leveres til bedrifter eller private kjøpere.
Vjuhytta
-
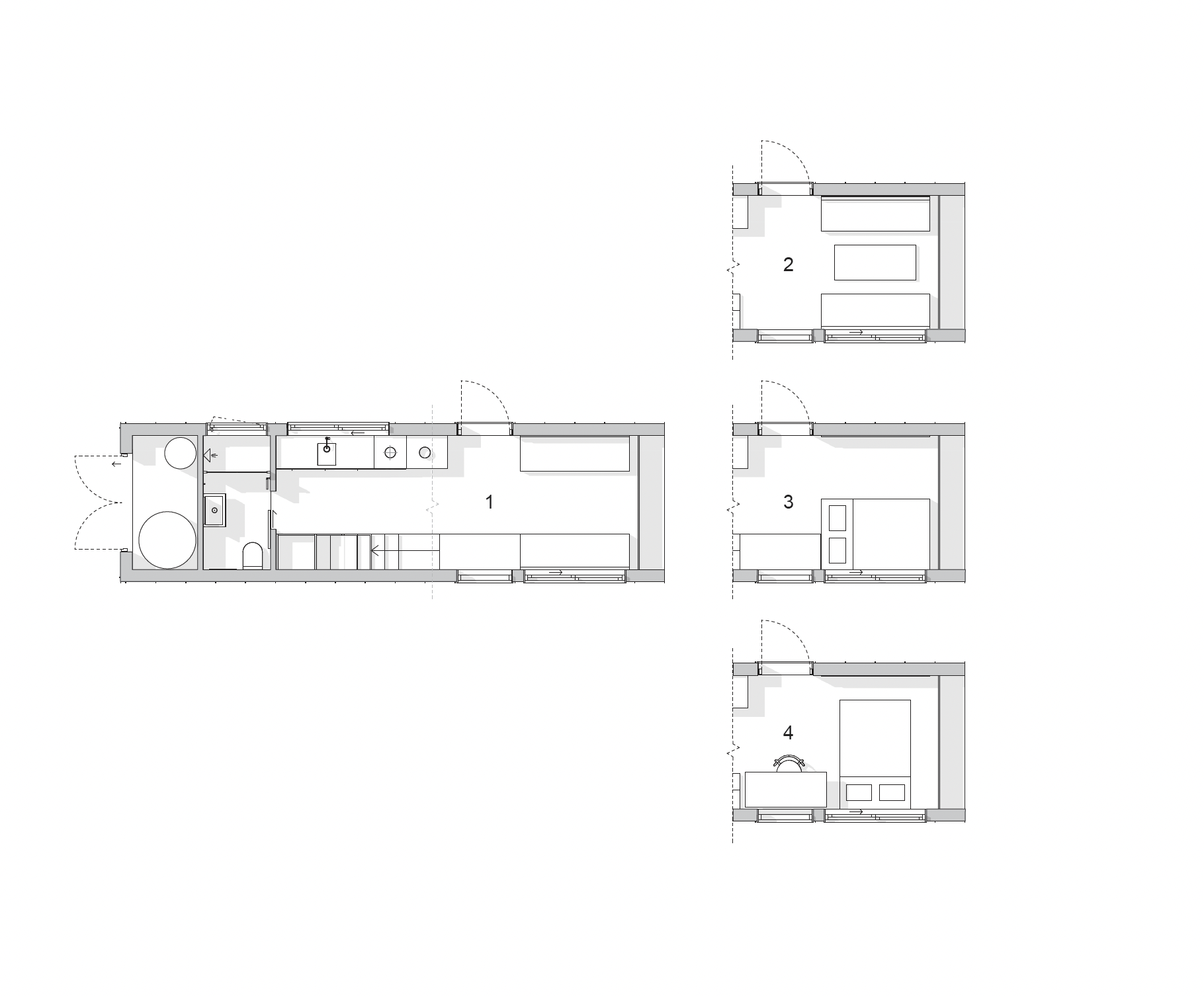
Vju Cabin/Vjuhytta ble opprinnelig tegnet av Dark Arkitekter ved Sofia Cunha. Denne oppdaterte versjonen er videreutviklet av arkitekt Vilde Aall Rosendahl og Vjus egen produktsjef Cameron John Manson. Med fokus på kvalitet, funksjon og fleksibilitet i bruk, er Vju Cabin en kompakt løsning som oppfyller moderne krav til komfort. Samtidig utfordrer den oss til å bruke mindre strøm, mindre vann og litt mindre plass.
-
Som standard leverer vi våre modeller med innervegger av massivtre, trefiberisolasjon, fullt utstyrt bad, panoramavindu, vinduer og dører i dobbeltglass og rammer i sort utførelse. Se prospekt for tilvalg og detaljer.
-
Bruksareal 20m2 + 7m2 hems
Lengde 10,0m
Bredde 2,9m
Høyde 4,2m
Fra 1.490.000,- +mva