<- Vju Large
Vju Jakt og Fiske ->

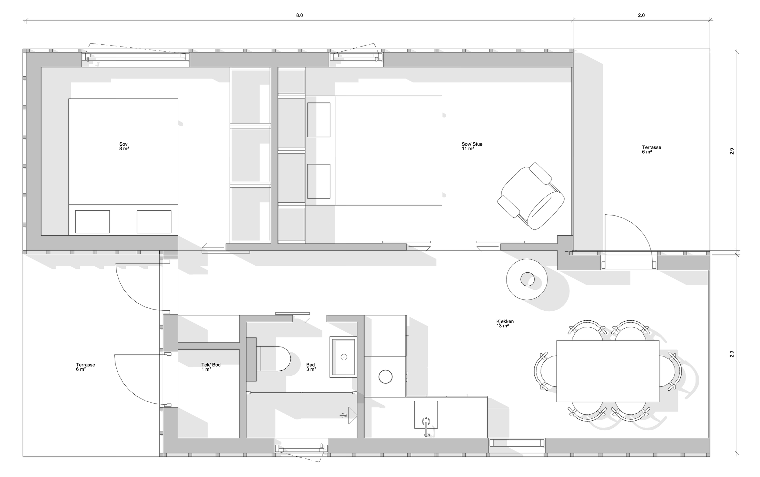
Vju X-large

  • Vju X-large består av to Mediummoduler satt sammen. Løsningen kan fungere for inntill 6 gjester på 2 eller tre soverom. Med to store panoramavinduer får du fantastisk utsikt både fra soverom og kjøkkenet. God plass til oppbevaring av klær og turutstyr.

  • Som standard leverer vi våre X-large-modeller med innervegger av massivtre, trefiberisolasjon, fullt utstyrt bad, 2-lags panoramavindu, vinduer og dører og rammer i sort utførelse. Se prospekt for tilvalg og detaljer.

  • Bruksareal 36m2

    Lengde 8,0m

    Bredde 5,8m

    Høyde 3,2m (+stolper og fundament)

    Pris fra 1.890.000,- +mva

<- Vju Large
Vju Jakt og Fiske ->

Ta kontakt for mer informasjon